Sold
Property Reference
10985
Property Type
Mid Terraced House

Rooms

3 Bedroom
2 Bathrooms
1 Kitchen
0 Ensuite
Energy Performance Certificate (EPC)
C

Location

Lightfoot Street
Hoole
Chester
CH2 3AJ

This remarkable three-bedroom mid-terraced property boasts original features, spacious rooms, and tasteful décor, beautifully presented and ready to move into. It is just a stone's throw from everything Hoole has to offer and benefits from a recent redecoration.

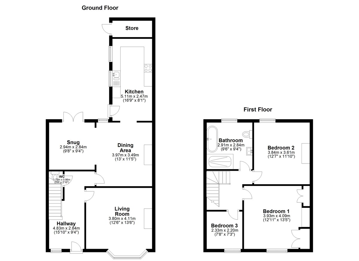
The property is approached via a walled front garden with a wrought iron gate leading to a tiled Victorian-style path up to the front door. Upon entering, you are welcomed into a hallway with parquet-style flooring and a staircase featuring the original balustrade. Leading off the hallway is a glorious bay-fronted living room with a high ceiling, decorative coving, an open fireplace, built-in shelving, and plantation shutters, creating a charming and inviting atmosphere. The hallway continues through to an open-plan dining room leading into a snug, offering ample space for family life or entertaining. The snug area features French doors opening onto the rear courtyard. At the rear of the ground floor is the fabulous kitchen, comprising shaker-style cupboards complemented by solid oak worktops, providing ample storage and workspace. In terms of appliances, there is a gas hob, an electric oven, and space for a dishwasher, washing machine, tumble dryer, and fridge freezer. The understairs space has been cleverly transformed into a well-designed downstairs toilet with a WC, vanity sink, and heated towel rail. There is also a great storage space under the stairs.

A spindled staircase leads up to a spacious landing, with doors opening to the bedrooms and bathroom. The first bedroom, located at the front of the property overlooking Lightfoot Street, is generously sized, featuring a high ceiling, a cast-iron feature fireplace with a tiled surround, and two fitted wardrobes that fit neatly into the chimney breast recesses. The second bedroom is another large double room, also featuring a cast-iron fireplace and overlooking the rear courtyard. The third bedroom, while able to accommodate a double bed, would also make an excellent dressing room or home office. The three bedrooms are served by a fantastic four-piece bathroom suite with tiled walls and flooring, comprising a luxurious oval-shaped bath, a large walk-in rain shower, a toilet, a sink, and a heated towel rail. There is loft access of the landing with a pull down ladder taking you to a boarded out loft space.

Outside, the property features a walled rear courtyard, fully decked with grey composite decking. A trellis on the courtyard wall enhances privacy, creating a wonderful space to relax in the sun. A useful brick-built storage building provides space for garden furniture or tools. Unpermitted parking is available on Lightfoot Street and the surrounding roads.

Hoole is a vibrant suburb adjacent to Chester city centre, renowned for its award-winning independent shops, café bars, and restaurants. Alexandra Park, featuring a children's play area, open lawns, and sports facilities, is just a minute's walk from Lightfoot Street. Essential amenities, including doctors' surgeries, hairdressers, dentists, and primary schools, as well as convenience stores such as a mini Sainsbury's, are all within walking distance of Edna Street. Waitrose, Chester city centre, and Chester railway station are also just a 10-minute walk away. Commuting is made easy with excellent access to the M53, M56, A55, and Chester Ring Road, along with walking and bus routes into the city centre.

Chester, steeped in history and charm, offers attractions such as the Roman Walls, the River Dee, and the Roodee racecourse. The city centre boasts a wide range of shopping and leisure opportunities, including the iconic Rows shopping area and numerous dining establishments. Employment hubs are easily accessible via a well-connected network of A roads and motorways.

Property Features
Large three bedroom terrace
Two reception rooms
Tasteful décor, modern interior
Situated in Hoole
No onward chain
Downstairs WC