For Sale
Property Reference
11366
Property Type
Penthouse

Rooms

3 Bedroom
2 Bathrooms
1 Kitchen
2 Ensuite
Energy Performance Certificate (EPC)
C

Location

Hoole Road
Chester
CH2 3PB

An attractive duplex penthouse apartment with splendid views over Hoole's playing fields that does not compromise on space. Situated roughly halfway along Hoole Road is Charlton Court, a small apartment development that is fantastically positioned, with close proximity to all that Hoole has to offer, as well as Chester city centre and excellent road networks.

Charlton Court is a small development of 12 apartments, located directly opposite Hoole's playing fields. It is slightly set back from Hoole Road, with some of the development's car parking to the front. The entrance to this particular property is found on the second floor, accessed via a communal hallway and stairwell leading to the front door.

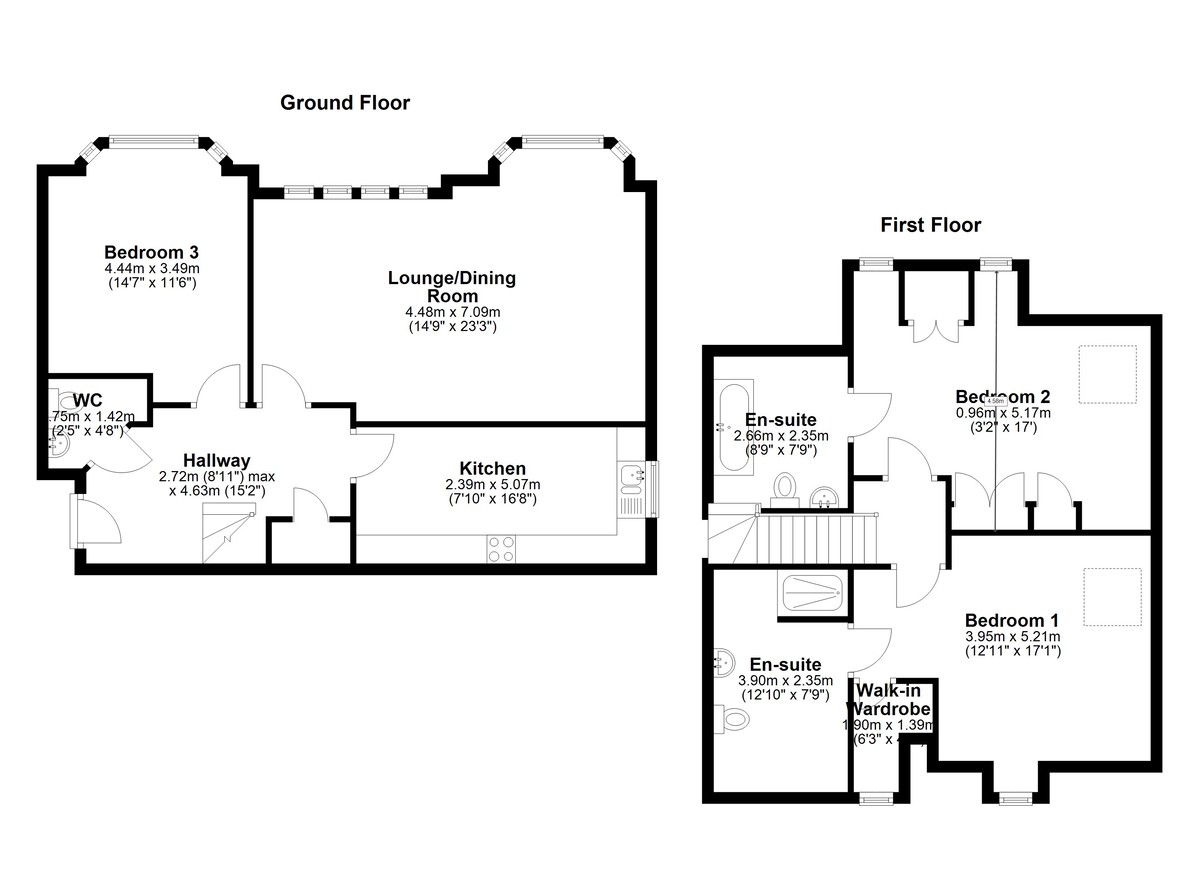
The accommodation unfolds over two floors. The front door opens into a larger-than-average hallway for an apartment, with doors leading off. A spacious living and dining room, spanning over 23 feet in length, benefits from plenty of natural light through large windows and offers ample space for separate sitting and dining areas. Adjacent to the living room is the well-equipped kitchen, comprising a range of wall and base units with an integrated dishwasher, washing machine, gas hob, oven, and space for a fridge freezer. The kitchen would comfortably accommodate a two-seater dining or bar-style table.

The third bedroom is also located on this floor and offers excellent versatility, as it could be used as a home office, second reception room, or separate dining room. Completing this level is a convenient WC and an understairs storage cupboard.

An L-shaped staircase leads to the upper floor, where a small landing provides access to two large, back-to-back double bedrooms. Both rooms are similar in size, with no definitive principal bedroom, and each benefits from an en-suite bathroom and fitted storage for clothing. The bedroom at the front of the property enjoys views over the playing fields, offering sights of dog walkers or weekend football matches.

Externally, the property includes two allocated parking spaces, with the added benefit of visitor parking also being available. The apartment comes with a share of the freehold and benefits from a full fibre broadband connection.

The apartment's position in Hoole is truly one of its strongest assets. Hoole is a thriving and welcoming community, just a short walk from Chester city centre and the mainline railway station. The area is renowned for its independent shops, award-winning cafés and restaurants, artisan bakeries, and lively pubs. It strikes the perfect balance between the convenience of city living and the friendliness of a village-like atmosphere.

For commuters, the location is ideal, with easy access to the A56, M53, and nearby rail links providing direct routes to Manchester, Liverpool, and London. Whether you are looking for a peaceful retreat with green views or a vibrant neighbourhood filled with local charm, this apartment offers the best of both worlds.

Property Features
Three bedroom penthouse apartment
Views over Hoole playing fields
Allocated car parking
Integrated appliances
Situated in Hoole
Spacious living accommodation