Sold
Property Reference
10540
Property Type
Duplex

Rooms

4 Bedroom
2 Bathrooms
1 Kitchen
1 Ensuite
Energy Performance Certificate (EPC)
D

Location

Bridge Street Row East
Chester
CH1 1NW

Guide Price £230,000 * Plus 3% Buyers Premium + VAT

For sale with Urban Sale & Let in partnership with Town & Country Property Auctions unconditional online auction. For sale by Online Auction - 10th of December 2025.

SOLD WITH VACANT POSSESSION and the title also includes the freehold of the ground floor which is subject to a long leasehold to a beauty salon.

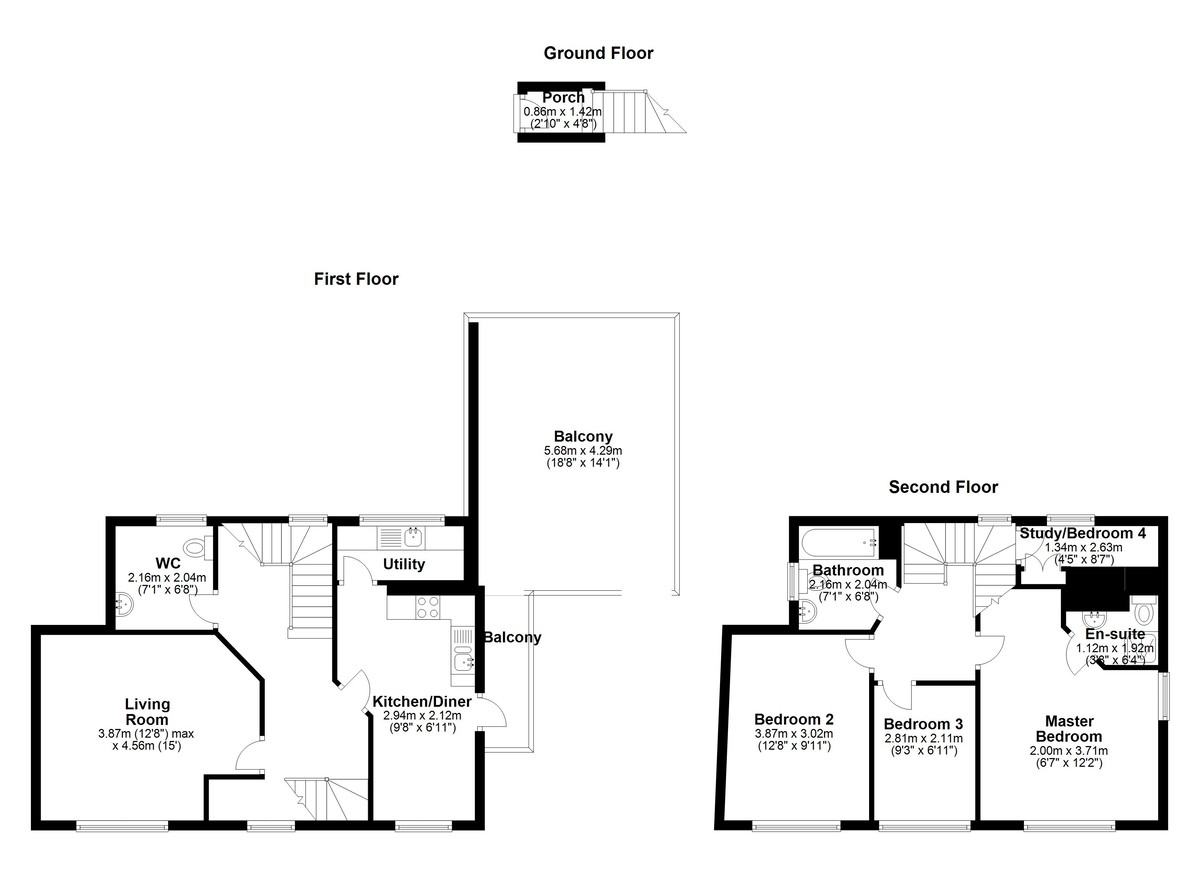
This exquisite freehold four-bedroom split level apartment located in the heart of Chester city centre is accessed directly from the famous Chester Rows via its own private entrance and is brought to the market with no onward chain, offering a combination of privacy with easy access to all of Chester's facilities.

In recent years, the property has undergone a full renovation and re-configuration including a full re-wire, new heating system, redecoration, and all new flooring, plaster and woodwork.

Making your way inside the property, through the front door there are stairs that lead to the first floor. Solid oak doors lead off the spacious hallway to the kitchen, living room and WC.

The kitchen, which is one of the highlights of the property is tastefully fitted with contemporary style grey gloss fronted units and drawers and gloss walnut flooring. There is an integrated dishwasher, four ring Bosch gas hob, glass splash back, stainless steel hood, Bosch electric oven/grill, and a 1.5 bowl stainless steel single drainer sink unit with contemporary style mixer tap. The light and airy kitchen has ample space for a dining table with a door leading to a separate good size utility room. An external door leads to a private roof terrace that offers a fantastic relaxation space.

The reception room offers spacious living space, and finishing the first floor is a contemporary styled WC with matching toilet and washbasin.

A staircase leads from the first-floor landing with useful study area to the second floor landing with an original floor to ceiling window.
The spacious master bedroom has an en-suite shower room fitted with Porcelanosa fittings and tiling with a corner shower cubicle, wash hand basin and WC.

Bedroom two is another great size double with a large window providing ample natural light. Bedroom three is smaller and could be made into a elegant dressing room and bedroom 4 is the smallest room which could also double as a study. Also off the landing is the family bathroom with Porcelanosa fittings, bath with shower above, WC and vanity sink.

A particular feature of the property is an external roof terrace with a synthetic turf layer.

The apartment itself does not have allocated parking but annual parking passes can be bought for reasonable prices from several local carparks.

Property Features
Roof terrace
No onward chain
Within the city walls
Renovated throughout
High specification
Not overlooked